1930's cottage located in AONB looking to make it the dream home. Purchased in 2023 and renovated the house to be habitable. The house is a small 2 bed cottage situated in Suckley, Worcestershire.
The property was off gid using small scale solar panels and a spring to supply water. Work was done to get the property on the grid although water is still supplied via the spring with upgraded filtration.
Have three project's that we want to conside UBuild for. Replace an existing barn, build a cabin in the woods, extend the cottage. Want to consider UBuild as like to be self sufficient so like the concept of being able to build yourself. There is limited site access as it is on country lane so being able to construct onsite is good. Interested in finding out the next steps to progress the project and the costs involved and how it compares to more traditional building methods.


























Replacing existing barn to be a two storey building. Ground floor to be a multi purpose space Office/Workshop/Studio. Upstairs to be a self contained annex.
Inlcude large doors on the office side, lots of light and views of the woodland.







Goal to self build a cosy cabin located in a small bit of woodland at the top of the field, backed onto a larger woodland. It would be offgrid giving people a relaxing place to stay getting away from the distractions of modern life.
Second project on the list. Possibly a good side project practising with the UBuild platform while Barn planning application is being processed.


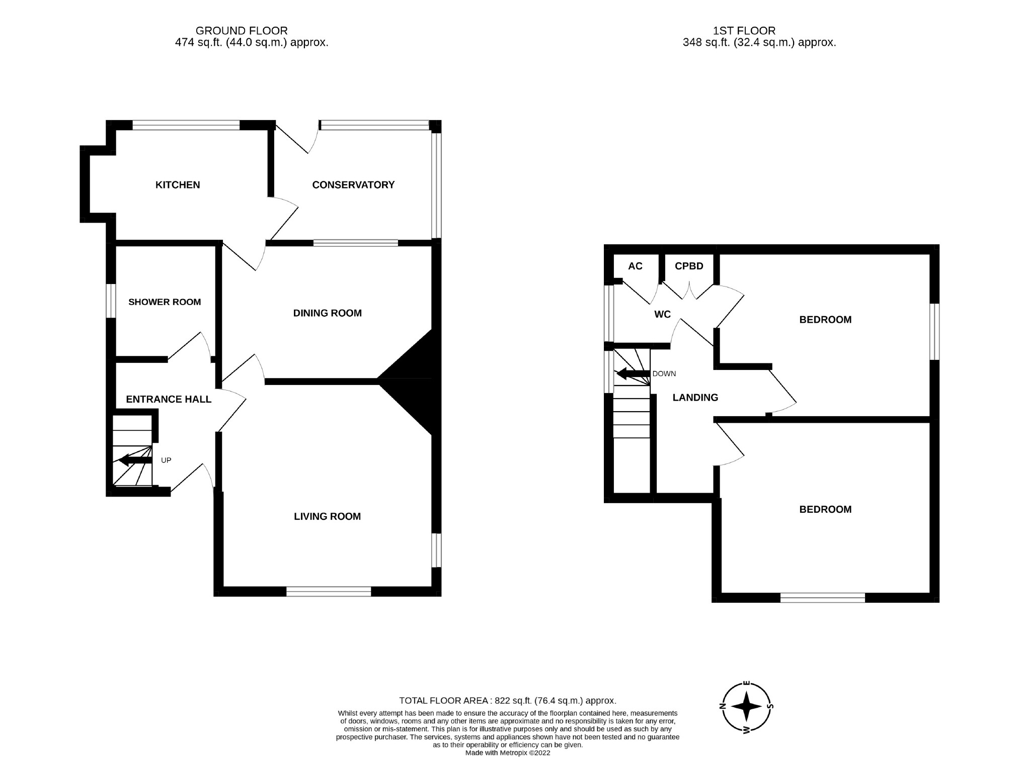
Final stage to build an extension onto the main house. This would provide a modern kitchen/living area. Not sure if single or two storey. Not sure how to make it work with the existing cottage floorplan.






